
Competition 2023, 1st Prize
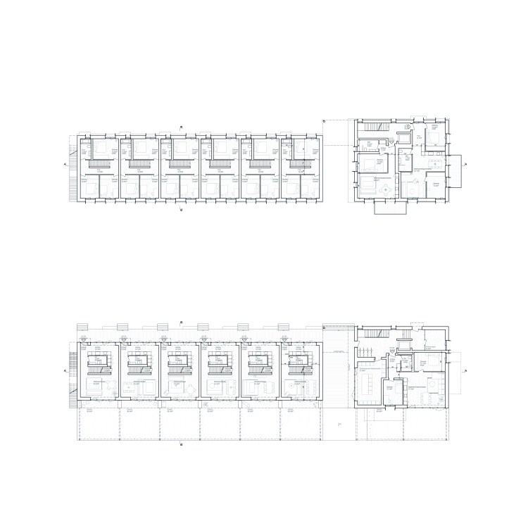
A total of 18 apartments (a mix of townhouses, duplexes and regular apartments) are split up between 2 buildings, which blend in with the existing structure of this industrial area at the outskirts of Zurich.
The complex acts as a catalyst for an otherwise poorly developed area: a raised ground floor (pushed up by the underground garage due to high groundwater levels), an access balcony towards the street in the North, a small pass-through with its adjacent laundry room as well as private gardens in the South… they all define different degrees of privateness and public space.
A low-tech approach (e.g. no mechanically controlled ventilation) and the use of sustainable materials such as wood, hemp stone and clay plaster make this building environmental friendly. Energy is provided by the ground water via heat exchange and solar cells on the roof. The use of concrete has been minimized to an absolute minimum.
in collaboration with Bauwerkstadt AG and Michael Konstanzer
client: Nest Sammelstiftung, Zürich
landscape architecture: JANS Landschaftsarchitektur, Zürich
energy concept: Amstein + Walthert AG, Zürich
© images: indievisual AG




